티스토리 뷰
목차

마곡16단지 분양일정 및 청약 절차 안내
마곡지구 내 최신 주거 프로젝트인 마곡16단지의 분양일정이 발표되었습니다. 서울 서남부의 핵심 개발 지역인 마곡지구는 최첨단 생활 인프라와 편리한 교통 시스템을 갖춘, 주거 선호도가 높은 지역입니다. 이번 포스트에서는 마곡16단지의 분양일정, 청약 절차, 그리고 이 단지가 주목받는 이유에 대해 자세히 알아보겠습니다.
분양일정 개요
마곡16단지의 분양 일정은 다음과 같습니다. 구체적인 날짜는 분양 공고를 통해 확인하실 수 있으며, 일정은 사정에 따라 변경될 수 있습니다.(자세한정보는 아래 링크를 확인하세요.)
사전 공고 및 홍보 기간
분양 전, 프로젝트에 대한 사전 홍보와 함께 상세한 단지 정보가 제공됩니다.






청약 접수
청약 접수 기간에는 신청자의 자격 요건을 확인하고, 필요한 서류를 준비하여 제출합니다.
당첨자 발표
청약 접수 후, 신청자 중에서 추첨을 통해 당첨자가 발표됩니다.
계약 체결
당첨자는 발표 후 정해진 기간 내에 분양 계약을 체결해야 합니다.
청약 절차
마곡16단지의 청약 절차는 투명하고 공정한 방식으로 진행됩니다. 청약을 희망하는 신청자는 다음 절차에 따라 참여할 수 있습니다.
- 자격 요건 확인: 청약 신청 전, 주택법에 따른 자격 요건을 확인합니다.

- 필요 서류 준비: 주민등록등본, 소득 증명서 등 청약에 필요한 서류를 준비합니다.
- 온라인 신청: 청약 홈페이지를 통해 온라인으로 신청서를 작성하고 서류를 제출합니다.
- 당첨 결과 확인: 청약 접수 마감 후, 공식 발표를 통해 당첨 결과를 확인합니다.
마곡16단지의 특징
- 탁월한 위치: 서울 서남부의 교통 요지에 위치하여 시내 중심지와의 접근성이 우수합니다.
- 현대적인 생활 인프라: 최신 건축 기술과 디자인이 적용되어 편리하고 현대적인 생활을 지원합니다.
- 녹지 공간: 단지 내외부에 조성된 녹지 공간과 산책로는 주민들에게 쾌적한 주거 환경을 제공합니다.
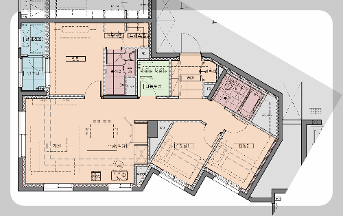
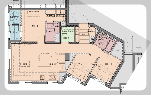
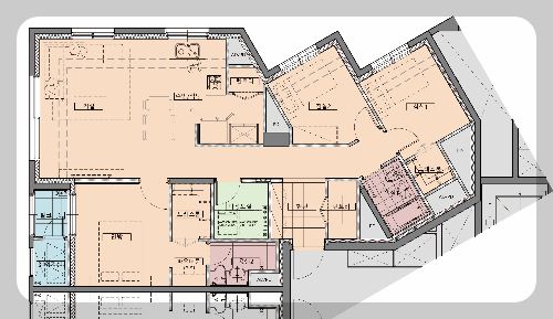
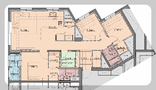
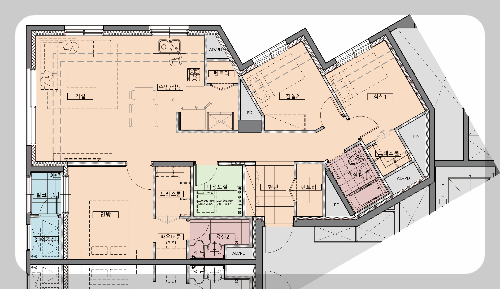
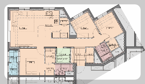
아래는 공고에 올라온 도면들입니다.










마치며
마곡16단지는 뛰어난 입지 조건과 함께 현대적인 생활 환경을 제공하는 주거 공간입니다. 분양에 관심 있는 분들은 분양일정과 청약 절차를 미리 확인하시고, 준비에 필요한 사항을 철저히 준비하시기 바랍니다. 마곡16단지는 여러분의 꿈을 실현할 수 있는 최적의 기회를 제공할 것입니다.